Grad Dubrovnik

Izdana građevinska dozvola za vatrogasni dom u Zatonu

Grad Dubrovnik je ishodio građevinsku dozvolu za izgradnju vatrogasnog doma u Zatonu, čime se nastavlja ulaganje u vatrogastvo. Ovaj projekt uključuje modernu infrastrukturu i poboljšanje uvjeta za vatrogasce.

Izdana građevinska dozvola za vatrogasni dom u Zatonu

Grad Dubrovnik, putem Upravnog odjela za izgradnju i upravljanje projektima, ishodio je građevinsku dozvolu za izgradnju vatrogasnog doma u Zatonu, čime je ispunjen posljednji uvjet za realizaciju investicije kojom Grad Dubrovnik nastavlja ulagati u osnaživanje vatrogastva na svome području.

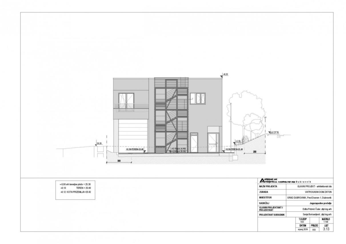
Vatrogasni dom gradit će se na dijelu čest. zem. 405 k.o. Zaton, a sastoji od prizemlja i kata s ravnim krovom te uključuje garažne jedinice za vatrogasna vozila, servisno-tehnički trakt, smještajno-upravni trakt te vanjske stepenice, odnosno vatrogasni toranj. Okoliš terena će se hrotikulturno urediti, na način da će se maksimalno obogatiti novim stablima.

Podsjetimo, ishođenju građevinske dozvole za vatrogasni dom prethodila je izgradnja novog raskrižja na državnoj cesti D8 u Zatonu Velikom s lijevim i desnim skretačem, a izvedeni su i radovi na izgradnji dijela oborinske odvodnje. Dionica je opremljena s ukupno 11 stupova javne rasvjete visine devet metara raspoređenih uz sjevernu stranu ceste. Naime, budući objekt vatrogasnog doma, gradit će se uz sjeverni rub državne ceste D-8 te će se preko novoformiranog križanja spajati na postojeću javnu prometnu mrežu. Sukladno sporazumu Grada Dubrovnika i Hrvatskih cesta, navedena investicija je sufinancirana u omjeru od 50 posto između navedenih strana.

Ulaganja Grada Dubrovnika u vatrogastvo su kontinuirana. Kroz više potpisanih kolektivnih ugovora osiguran je jedan od najboljih kolektivnih ugovora za vatrogasce u Republici Hrvatskoj. Godišnja izdvajanja za materijalna prava povećana su u odnosu na 2017. godinu za 124 posto. Nabavljen je vatrogasni brod Orlando i formirana je posada koja je dostupna 24 sata dnevno. Sufinancirana je izgradnja vatrogasnog doma DVD-a Osojnik, a vozni park Javne vatrogasne postrojbe značajno je pomlađen te je podignuta operativna spremnost postrojbe.

Izdana građevinska dozvola za vatrogasni dom u Zatonu dubrovnik.hr
Izdana građevinska dozvola za vatrogasni dom u Zatonu dubrovnik.hr
Izdana građevinska dozvola za vatrogasni dom u Zatonu dubrovnik.hr
Izdana građevinska dozvola za vatrogasni dom u Zatonu dubrovnik.hr
Izdana građevinska dozvola za vatrogasni dom u Zatonu dubrovnik.hr
Izdana građevinska dozvola za vatrogasni dom u Zatonu dubrovnik.hr
Izdana građevinska dozvola za vatrogasni dom u Zatonu dubrovnik.hr
  • Autor: dubrovnik.hr
  • Foto: dubrovnik.hr
  • Objavljen: 31.10.2025 11:36

Nema komentara

Komentiraj članak

Potrebna je prijava kako biste komentirali.